Save
Ask
Tour
Hide
Share
$780,586
1 Day On Site

2412 Roundrock Road
Northlake, TX 76226

For Sale|Single Family Residence|Active
5
Beds
5
Total Baths
4
Full Baths
1
Partial Bath
3,771
SqFt
$207
/SqFt
2026
Built
Subdivision:
The Ridge at Northlake
County:
Denton
2412 Roundrock Road2412 Roundrock Road2412 Roundrock Road2412 Roundrock Road
Save
Ask
Tour
Hide
Share

Mortgage Calculator

Monthly Payment (Est.)

$3,561
Calculator powered by Showcase IDX, a Constellation1 Company. Copyright ©2025 Information is deemed reliable but not guaranteed.

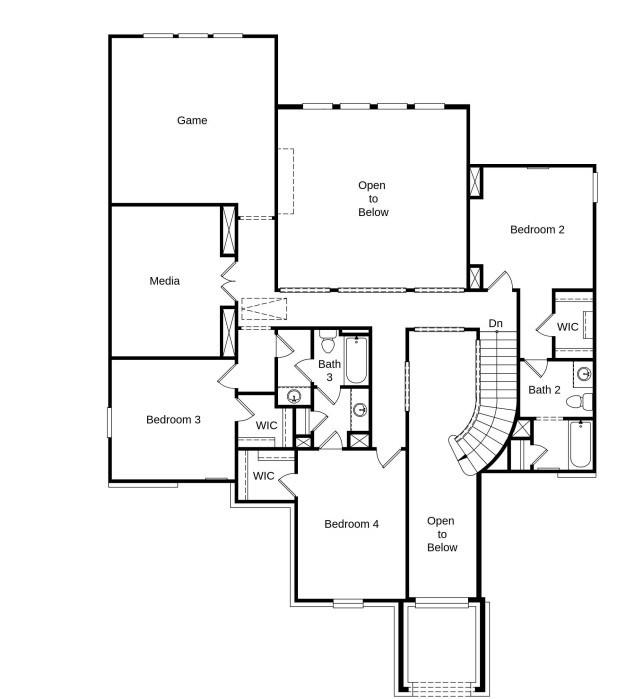
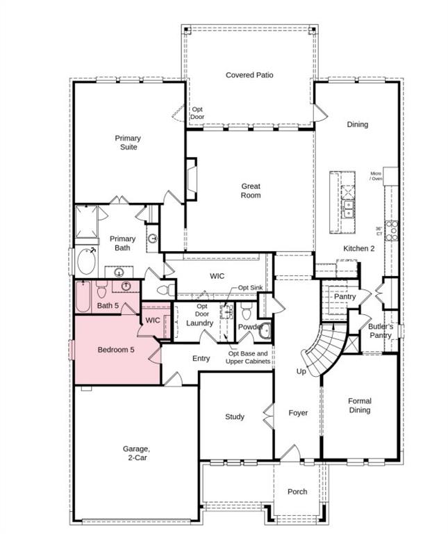
What's Special: 5th Bedroom - East Facing Lot. New Construction - January Completion! Built by Taylor Morrison, America's Most Trusted Homebuilder. Welcome to the Larimar at 2412 Roundrock Road in Ridge at Northlake. This stunning two-story home makes a lasting impression from the moment you arrive. A graceful wrapped staircase anchors the entry, flanked by a private study and an elegant formal dining room. The dining space connects seamlessly to the gourmet kitchen through a butler’s pantry—perfect for effortless entertaining. The kitchen features a large island that opens to the great room and casual dining area, creating a bright and welcoming space for gathering. Upstairs, you’ll find spacious secondary bedrooms, a game room, and a media room—ideal for cozy nights in or lively evenings with friends. At The Ridge at Northlake 60s, enjoy resort-style amenities, playgrounds, and the Adventure Park with an outdoor ninja course. Relax by the sparkling pool, stay active at the fitness center, or gather at the clubhouse. With top-rated Argyle ISD schools and miles of trails, this vibrant community feels like home. Additional Highlights include: 5th bedroom, gas to patio, door to laundry, study, upgraded flooring, countertops and electrical. Photos are for representative purposes only. MLS#21130070

Save
Ask
Tour
Hide
Share
Listing Snapshot
Price 
$780,586
Days On Site 
1 Day
Bedrooms 
5
Inside Area (SqFt) 
3,771 sqft
Total Baths 
5
Full Baths 
4
Partial Baths 
1
Lot Size 
0.1718 Acres
Year Built 
2026
MLS® Number 
21130070
Status 
Active
Property Tax 
N/A
HOA/Condo/Coop Fees 
$123.67 monthly
Sq Ft Source 
N/A
Friends & Family
Recent Activity
yesterdayListing updated with changes from the MLS®
yesterdayListing first seen on site
General Features
Acres 
0.1718
Attached Garage 
Yes
Foundation 
Slab
Garage 
Yes
Garage Spaces 
2
Levels 
Two
Parking 
DrivewayGarageGarage Door OpenerGarage Faces FrontAttached
Property Condition 
New Construction
Property Sub Type 
Single Family Residence
Security 
Carbon Monoxide Detector(s)PrewiredSmoke Detector(s)
Sewer 
Public Sewer
Style 
Traditional
Utilities 
Underground Utilities
Water Source 
Public
Interior Features
Appliances 
DishwasherDisposalElectric OvenGas CooktopMicrowaveTankless Water HeaterVented Exhaust Fan
Cooling 
Central Air
Fireplace 
Yes
Fireplace Features 
Gas Log
Fireplaces 
1
Flooring 
CarpetCeramic TileWoodVinyl
Heating 
Exhaust FanNatural Gas
Interior 
Double VanityEat-in KitchenKitchen IslandOpen FloorplanPantryVaulted Ceiling(s)Walk-In Closet(s)
Laundry Features 
Electric Dryer HookupWasher Hookup
Bath-Full 
Dimensions - 0 x 0Level - Second
Bath-Half 
Dimensions - 0 x 0Level - First
Bedroom 
Dimensions - 0 x 0Level - Second
Dining Room 
Dimensions - 0 x 0Level - First
Game Room 
Dimensions - 0 x 0Level - Second
Kitchen 
Dimensions - 0 x 0Level - First
Living Room 
Dimensions - 0 x 0Level - First
Master Bathroom 
Dimensions - 0 x 0Level - First
Master Bedroom 
Dimensions - 0 x 0Level - First
Media Room 
Dimensions - 0 x 0Level - Second
Office 
Dimensions - 0 x 0Level - First
Utility Room 
Dimensions - 0 x 0Level - First
Save
Ask
Tour
Hide
Share
Exterior Features
Construction Details 
BrickStone
Exterior 
Rain GuttersPrivate Yard
Fencing 
Wood
Lot Features 
Interior LotSubdivided
Patio And Porch 
CoveredPatio
Roof 
Composition
Community Features
Association Dues 
1484
Community Features 
PoolClubhouseCurbsFishingFitness CenterParkPlaygroundSidewalksOther
Financing Terms Available 
CashConventionalFHAVA Loan
HOA Fee Frequency 
Annually
School District 
Argyle ISD
Schools
School District
Argyle ISD
Elementary School
Jane Ruestmann
Middle School
Argyle
High School
Argyle
Listing courtesy of Bobbie Alexander of Alexander Properties dallasinfo@taylormorrison.com



© 2020 North Texas Real Estate Information Systems. All rights reserved. Information is deemed reliable but is not guaranteed accurate by the MLS or NTREIS. The information being provided is for the consumer's personal, non-commercial use, and may not be reproduced, redistributed, or used for any purpose other than to identify prospective properties consumers may be interested in purchasing.
Last checked: 2025-12-12 01:09 PM CST

Neighborhood & Commute
Source: Walkscore
Disclosure: Community information and market data powered by Constellation Data Labs. Information is deemed reliable but not guaranteed.
Save
Ask
Tour
Hide
Share